Status
Complete
Type
Extension and Refurbishment
Key Features
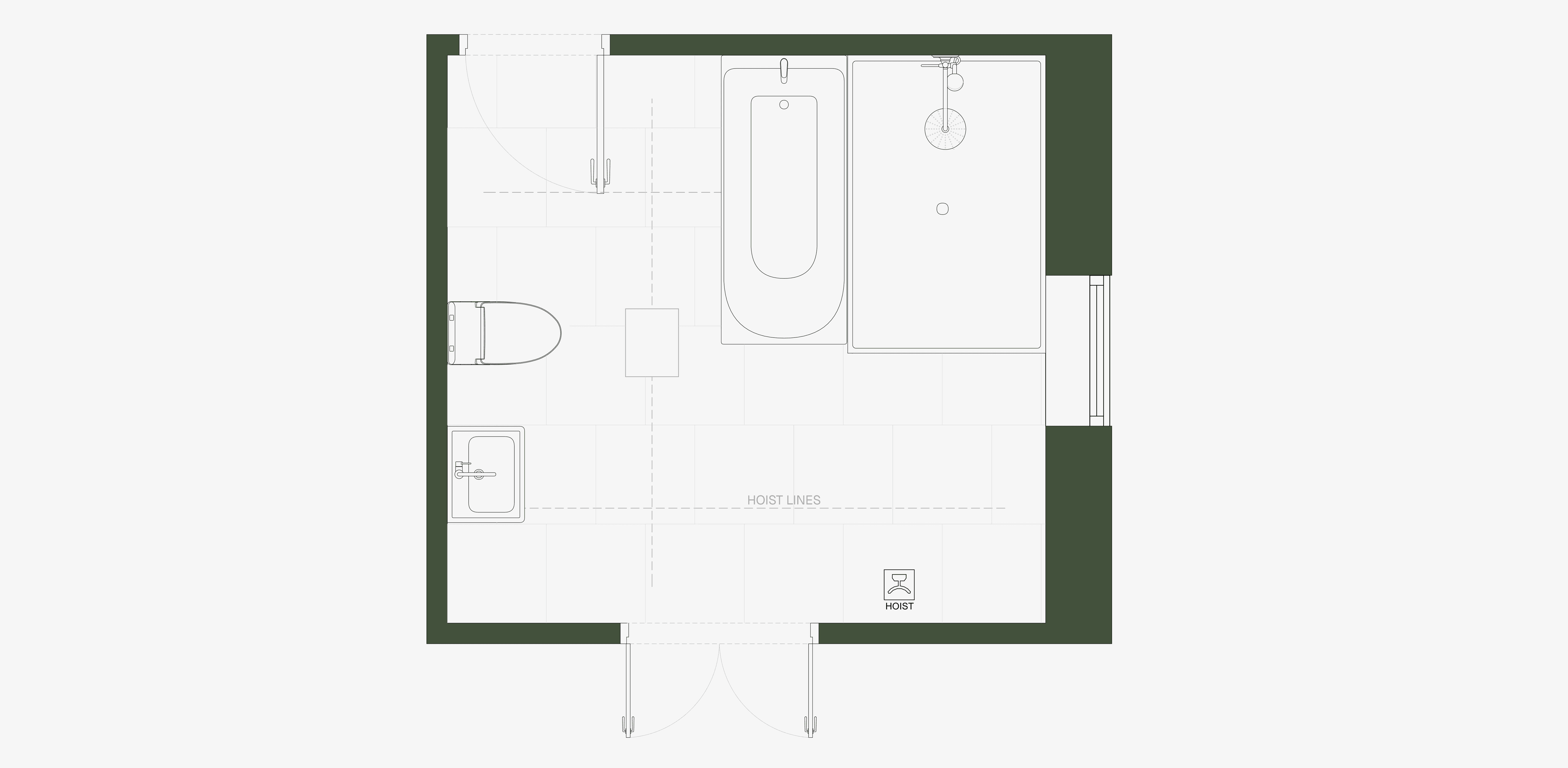
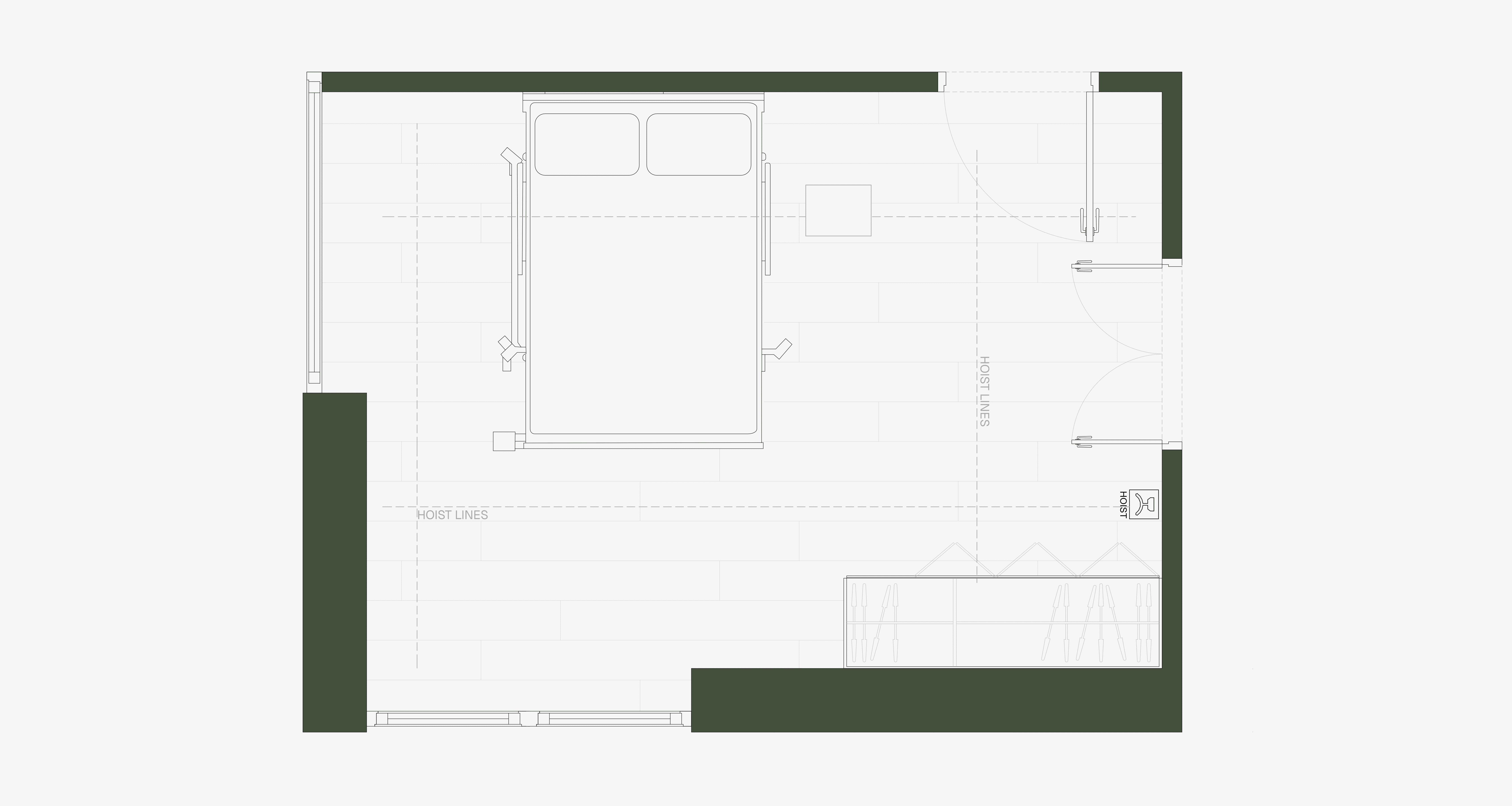
Full Wheelchair Accessible
Therapy Room
Sustainable Design
Year
2020 - 2024
The Brief
This project involves the extension of an existing home to create a safe, accessible, and future-ready living environment for Amelia, a young person with complex physical and cognitive needs.
Amelia sustained an injury at birth and has been diagnosed with a severe form of dyskinetic cerebral palsy, resulting in significant developmental delay, visual impairment, and full dependence on others for daily care. She requires gastrostomy feeding and 24-hour support. Prior to the project, Amelia lived with her family in a three-bedroom semi-detached chalet bungalow. The property was not suitable for her long-term needs and could not be realistically adapted to provide the level of accessibility, care provision, and specialist space required.
The aim of the project was to create a home that supports her care, comfort, and wellbeing while improving everyday family life.


The Challenge
The existing house lacked both the space and layout needed to safely accommodate Amelia’s mobility and care requirements. Essential facilities such as an accessible bedroom, appropriate bathroom provision, therapy space, and accommodation for carers could not be incorporated within the original footprint of the building.
The design therefore needed to introduce additional space while ensuring the new accommodation integrated seamlessly with the existing home. It was also important to create an environment that felt warm and domestic, avoiding a clinical character while still meeting complex functional requirements.
The Solution
A carefully designed extension provides fully wheelchair-accessible accommodation tailored to Amelia’s needs. The new spaces include a larger accessible bedroom with an en-suite bathroom, a dedicated carer suite, a therapy and sensory room, and supporting utility and storage areas. The layout has been planned to support efficient care, safe circulation, and comfortable day-to-day living, while maintaining a cohesive relationship with the existing home.
The additional accommodation allows Amelia to receive the level of care she requires in a safe and supportive environment, while also improving the overall functionality of the house for the whole family.
The result is an adaptable and practical home designed to support Amelia’s needs both now and in the future, providing a comfortable setting for family life alongside long-term care.





